【店舗】平和町クラス
家賃 1階北:成約済、1階南:316,000円、2階北:323,000円、2階南:263,000円 共益費 24,000円
| 家賃 | 1階北:成約済、1階南:316,000円、2階北:323,000円、2階南:263,000円 | 共益費 | 24,000円 |
|---|---|---|---|
| 敷金 | 3ヶ月 | 礼金 | 1.5ヶ月 |
| 更新料 | なし | 火災保険 | 加入要 |
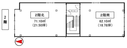
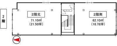
| 間取り | - | 面積 | 1階北:成約済、1階南:61.56㎡、2階北:71.10㎡、2階南:62.10㎡ |
| 構造 | 鉄骨造 | 階数 | 2階建て |
| 築年数 | 2025年8月築 | 受け渡し | 即 |
| 所在地 | 岡山市北区平和町6-8 | ||
| 学区 | - | ||
| 交通 | JR岡山駅まで徒歩9分(約650ⅿ) | ||
| 備考 |
【用途地域】商業地域 【家賃保証会社】加入要 【火災保険】加入要 【更新料】なし 【駐車場】なし 【設備】上水道、下水道、プロパンガス 【その他】24時間利用可、スケルトン渡し、飲食店可、内装工事等借主負担 【取引態様】仲介(仲介手数料1.1ヶ月分) |
||
| 周辺情報 | - | ||
| セールスポイント |
・1フロア2テナントの新築テナント物件 ・スケルトン渡し、内装・設備を自由に設計・設置できます ・徒歩圏内に岡山駅や表町商店街、ハレまち通りがあり、人が行き交うエリア 【募集情報】 1階北 成約済 1階南 61.56㎡(18.62坪) 賃料:316,000円(税込) 共益費:24,000円(税込) 2階北 71.10㎡(21.50坪) 賃料:323,000円(税込) 共益費:24,000円(税込) 2階南 62.10㎡(18.78坪) 賃料:263,000円(税込) 共益費:24,000円(税込) 内見希望、お問い合わせ等、お気軽にご連絡ください。 |
||








